The Henrys Lake Flat is one of Island Park’s crown jewels. Together, we must protect the Flats from development or risk losing sensitive habitat for the wildlife we love.

The proposed airpark would have been developed on a 432-acre parcel on the east side of U.S. 20, about 0.7 miles north of Big Springs Loop Rd. Douglas Button of Imperial Investments LLC is heading the project. According to the proposal application, 133 acres of the 432-acre parcel would be rezoned for commercial/industrial use. What was intended for the 133 acres of commercial/industrial rezone is unknown.
The airpark would consist of approximately 32 residential lots encompassing a central airstrip. Many of the lots would front the taxiway, allowing for private airplane storage on each lot.
As of August 24th, the Fremont County P&Z Commission denied Imperial Investments LLC’s comprehensive plan amendment and rezone request. The decision by the P&Z Commission was subsequently appealed to the Fremont County Commissioners. As of March 2025, that appeal is still pending. We will continue to monitor future proposals on the Henrys Lake Flats, but the commission’s decision was a monumental win for wildlife!
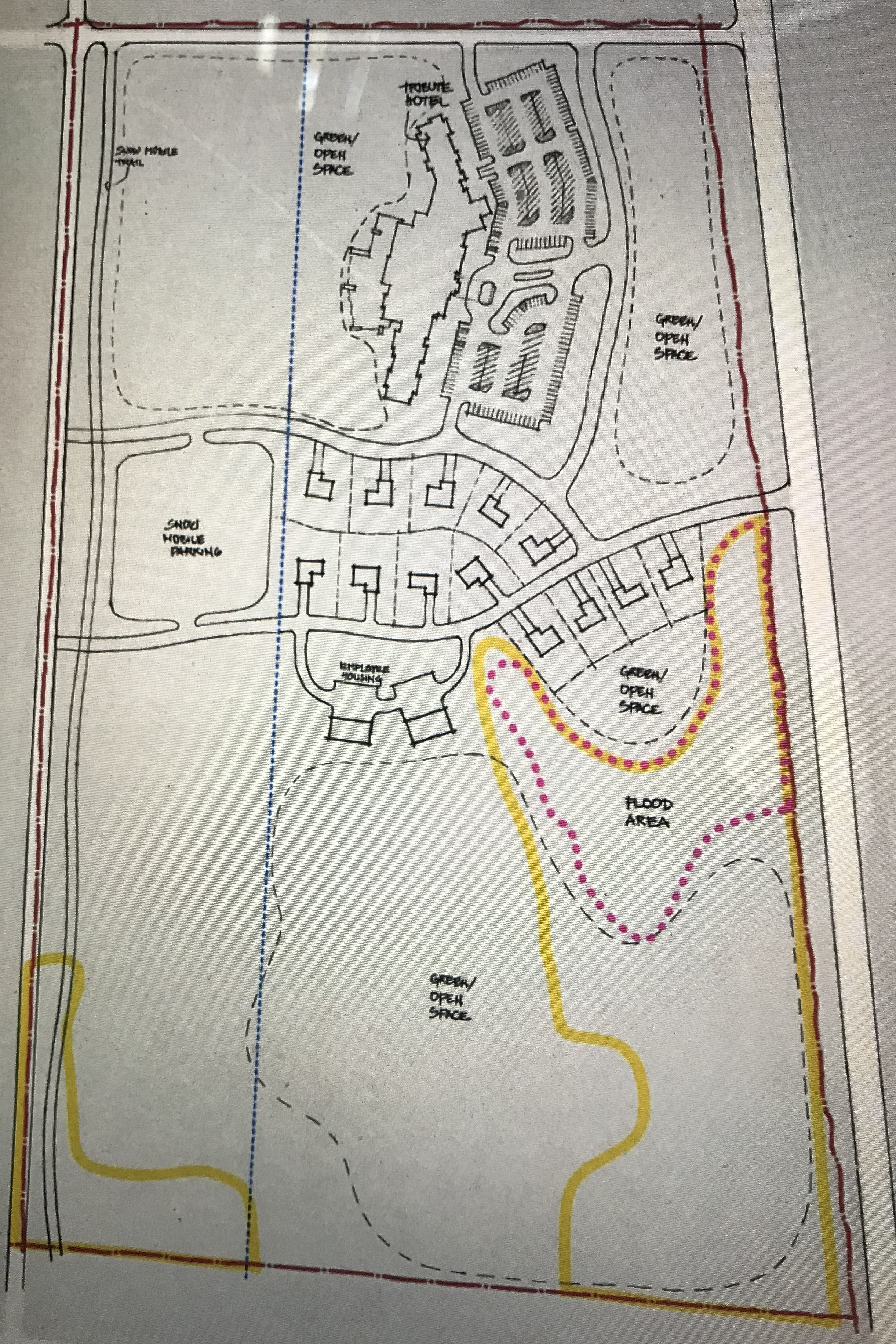
The application submitted by Ensign Hospitality, based in Salt Lake City, Utah, reveals that the project will consist of a 132-room Marriott hotel, ten residences, employee housing, and possibly a 70-stall RV park. The hotel will be officially known as the “Flat Rock Hotel” and will have over 5,000 square feet of meeting space, a full-service restaurant, a bar, and a spa.
Ensign Hospitality submitted this image of the proposed land diagram showing the hotel, homes, and RV park’s location on the 90-acre parcel. Sixty acres of the parcel is in Fremont County, and the other thirty are in the City of Island Park.
As of November 9th, 2024, the Fremont County Planning and Zoning Commission denied Ensign Hospitality’s class two permit application. In a 5-1 vote, the P&Z Commission stated that the application was improper for what the developer was asking for and instead called their request a “large-scale development.” The commission also determined that this development was indeed a “Hotel,” which is not allowed within the rural base zoning.
By Teri Ehresman of The Involved Property Owners of Island Park
The past few months these volunteers have spent two Saturdays in Island Park listening to proposals and testimony from residents about two big proposals that, if approved, would have a big impact on the future of Island Park. Decisions on both proposals were finalized on Monday, Dec. 16.
The seven commissioners represent all areas of Fremont County. In August, the commissioners met in Island Park to consider a proposal to change the Fremont County Comprehensive Plan map from Rural Base to Industrial to allow the development of an AirPark with over 30 homes on the 400 plus acre property. Prior to the hearing, the P&Z Commissioners read 300 pages of letters relating to the proposal. In Island Park that Saturday, the commissioners listened to nearly 5 hours of information from the applicants followed by comments from people who were opposed to changing the Comprehensive Plan and zone to allow the development. The P&Z Commissioners then discussed the application and unanimously voted to deny the application.
During the September P&Z Commission meeting the commissioners approved a Findings of Fact, Conclusions of Law and Decision, outlining the reasons why they voted to recommend denying the application. That decision stated:
1) The proposed Comprehensive Plan map change is not in keeping with the Comprehensive Plan’s policies that stress wildlife habitat and corridor preservation (for example, policies 11, 14, and 18).
2) The proposed zone change is not in keeping with the Comprehensive Plan Preferred Land Use Map.
3) The proposed zone change is not in keeping with the policies of the Comprehensive Plan that stress wildlife habitat and corridor preservation (for example, policies 11, 14, and 18).
4) The proposed zone change would be a spot zone.
The final decision on changes to the Fremont County Comprehensive Plan are made by the Fremont County Commissioner. On Monday, Dec. 16, the Findings of Fact, Conclusions of Law and Decision document was presented to the Fremont County Commissioners. The commissioners voted unanimously to follow the recommendation of the Planning and Zoning Commission and deny the application.
In denying the application, Commission Chairman Scott Kamachi thanked the P&Z Commissioners for their hard work and the time and effort spent in the process. He said he appreciated their efforts in following the letter of the law.
With the unanimous decision by the Fremont County Commissioners, the AirPark application is officially denied.
Later that evening, the Fremont P&Z Commissioners unanimously approved the Findings of Fact, Conclusions of Law and Decision on the 3-story hotel also proposed on the Henry’s Fork Flats. The application was for a Class 2 permit to operate a hotel in a Rural Base zone. That hearing was also held in Island Park in November and drew a crowd of about 150 people. Prior to the hearing, the P&Z commissioners had over 200 pages of comments on the proposal to read, in addition to listening to several hours of testimony the day of the hearing. The commissioners then discussed the application and by a 6-1 vote denied the application.
The application was denied based on these findings:
1) The proposed Class 2 permit is not in keeping with Fremont County Development Code allowed uses in the Rural Base Zone.
2) The proposed Class 2 permit is not in keeping with the Fremont County Comprehensive Plan’s policies that stress wildlife habitat and corridor preservation (for example policies 11, 14, 18)
3) The P&Z instructed the applicant that if they wanted a permit for a hotel, they would need to rezone to a zone that allowed hotels.
4) Note: One P&Z member voted against the motion to deny the permit out of concern for property rights.
The Fremont County Planning and Zoning Commission make the final decision on Class 2 permits, so the decision is final.
With Fremont County officially denying both applications, this is viewed as a huge win for Island Park and protecting Henry’s Lake Flats.
The effort to raise awareness of the proposals, study and address the issues happened because many individuals and groups were willing to work together to help #ProtectTheFlats.
There were many individuals working behind the scenes to help with this effort. Many donated their time, talents, and connections to help with this effort. We were able to work with key Idaho land use experts to help identify issues with the application. This was a huge benefit, and we appreciate the efforts of everyone involved.
In addition to individuals, the Involved Property Owners of Island Park had great teamwork and support from organizations such as The Nature Conservancy, Henry’s Fork Wildlife Alliance, Greater Yellowstone Coalition, Henry’s Fork Foundation, National Parks Conservation Association and Island Park Preservation Coalition and other groups. This was a huge team effort and win for Island Park residents and visitors to the area.
These decisions by the Fremont County Planning and Zoning Commissioners are likely one of the most important decisions they will make while volunteering their time on the commission. A sincere Thank You to every member of the commission for taking the time to read and study the issue and make well thought-out decisions. These decisions will help everyone #ProtectTheFlats.